Lagerfläche
4153 Reinach BL
Eckdaten
ObjekttypLagerfläche

Grossflächige Gewerbe- und Lagerfläche

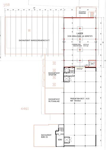
Die lichtdurchflutete Liegenschaft an der Industriestrasse 4 in Reinach bietet vielseitige Gewerbe- und Lagerflächen. Insgesamt stehen 1.187 m2 zur Verfügung. Das Gebäude überzeugt mit großzügigen Fensterflächen, stabilen Betonelementen und einer hohen Bodenbelastung von 1,2 bis 1,8 t/m².

Die Raumhöhen betragen zwischen 4,27 m und 4,6 m, was optimale Nutzungsmöglichkeiten für Produktion und Lagerung bietet. Drei Warenlifte mit einer Tragkraft von bis zu 4 t erleichtern den Transport innerhalb des Gebäudes. LKW’s können über die Laderampen be- und entladen werden. Beheizt wird die Liegenschaft über eine Ölheizung.

Das Gebäude wurde 1971 errichtet und über die Jahre mehrfach erweitert und modernisiert, zuletzt 2016. Es befindet sich in einem guten Zustand, da laufend Unterhaltsarbeiten durchgeführt wurden.

Die Liegenschaft befindet sich in unmittelbarer Nähe der Autobahnausfahrt «Reinach-Süd».

Weitere Flächen stehen nach Absprache ebenfalls zur Verfügung.

Die Flächen werden zur Zwischennutzung bis zu 4 Jahren angeboten.

Kontaktieren Sie uns noch heute, um weitere Informationen zu erhalten oder einen Besichtigungstermin zu vereinbaren!

 

Kontakt

Dirk Hitzfeld

+41 61 545 03 35

Besichtigung
Bitte füllen Sie das Kontaktformular aus.
Jetzt Anmelden

Suchprofil erstellen

Nicht die passende Bürofläche für Sie dabei? Erstellen Sie jetzt Ihr Suchprofil.

Suchprofil erstellen