Büro
8400 Winterthur
Kosten
Nettomiete300 CHF/m²/Jahr

Distanzen
Bahnhof125 m
ÖV39 m
Fläche
660 m²

Eckdaten
ObjekttypBüro
Dokumentation

Zentralste Lage in der Winterthurer Altstadt

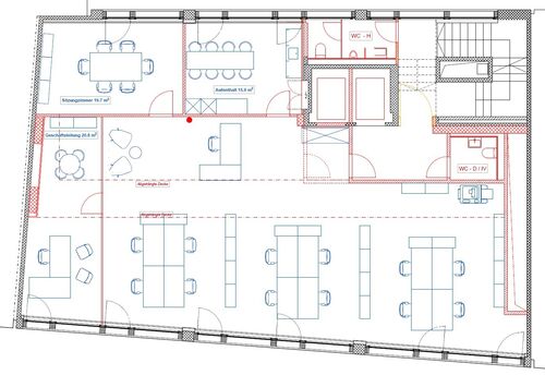
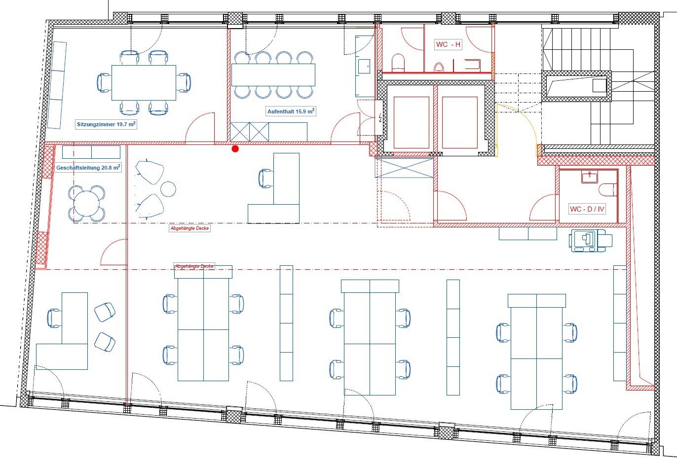
An bester Innenstadtlage, unmittelbar beim Bahnhof Winterthur, stehen ab Frühling 2027 oder nach Vereinbarung ca. 660 m² hochwertige Praxis- oder Büroflächen zur Vermietung.

 

Flächenangebot:

  • 2. Obergeschoss: ca. 176 m² 
  • 3. Obergeschoss: ca. 176 m²  
  • 4. Obergeschoss: ca. 176 m²  
  • 5. Obergeschoss: ca. 132 m²  

Die Flächen befinden sich im Rohausbau mit einer vollständig ausgebauten Lüftungs- und WC Anlage pro Etage. Die Visualisierungen zeigen einen möglichen Praxis- oder Büroausbau. Somit lassen sich Ihre Bedürfnisse flexibel umsetzen. 

 

Ihre Vorteile:

  • Hervorragender Standort mit wenigen Gehminuten zum Bahnhof Winterthur
  • Gute ÖV-Anbindung (Zug, Bus, S-Bahn)
  • Prominente Lage mit hoher Personenfrequenz
  • Repräsentativer Eingangsbereich
  • Lüftung und Kühlung bis Grenze Mietfläche 
  • Ausgebaute WC Anlagen pro Etage

 

Haben wir Ihr Interesse geweckt? Sehr gerne stehen wir Ihnen für weitere Informationen oder eine persönliche Besichtigung zur Verfügung.

Kontakt

Yalcin Yilmaz

+41 44 575 70 66

Besichtigung
Bitte füllen Sie das Kontaktformular aus.
Jetzt Anmelden

Suchprofil erstellen

Nicht die passende Bürofläche für Sie dabei? Erstellen Sie jetzt Ihr Suchprofil.

Suchprofil erstellen